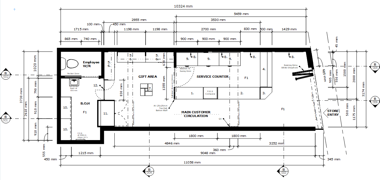
Surfers Paradise Tobacconist

Timelines are always an important part of projects, and working to a Client’s schedule is always among our top priorities. This project tasks us with very rapidly designing a fit-out for a retail outlet so that the Clients could open their doors for business as soon as possible. A focus was put on a design that sourced readily available fixtures and finishes, and selected works that could be completed by local trades or in a “DIY” manner. The result was an effective design for the client’s needs that allowed for maximum use of a small space, and rapid completion of design works.

Previous
Previous

Xtreme Refit

Next
Next

Surfer's Candy Outlet